Milano VIA DANTE P.ZZA CORDUSIO UFFICIO AL CENTRO DI MILANO

Si propone Ufficio di rappresentanza in Milano in doppia esposizione, Via Dante a ridosso da piazza del Duomo si trova all'interno di un palazzo, in pietra e marmo, che risale a fine ottocento con servizio di portierato intera giornata compreso il sabato mattina: è ubicato proprio di fronte a Piazza Cordusio suggestiva vista di una delle piazze più celebri d’Italia.
La zona è ottimamente servita dai mezzi pubblici e in venti minuti di autobus dall'aeroporto di Linate.
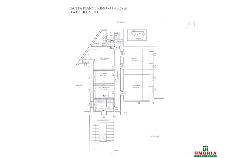
Un ufficio privato per la vostra azienda, un posto tranquillo dove lavorare, uno spazio pratico e funzionale, una sala riunioni e diversi spazi ben divisi internamente per sale di formazione o sale video conferenza suddivise nei 164 mq proposti per continuare a sviluppare la vostra azienda.
Piazza del Duomo è il luogo ideale per lo shopping e il divertimento serale: nelle vicinanze si trovano negozi d’alta moda, gioiellerie, boutique, cinema, teatri, ristoranti e bar.
Milano che è una delle città più produttive e cosmopolite d’Europa, che da sempre si è contraddistinta per l’immagine professionale del centro che trasmette alle aziende nel territorio internazionale e nazionale. www.immobiliareumbria.it

Milano | CENTRO | € 5.420,00 (mese) | 164m²

DANTE

annuncio numero: 1727

Caratteristiche principali:


  • Contratto: Affitto
  • Tipo Immobile: Ufficio
  • Locali: 5
  • Stato Immobile: BUONE
  • Anno: 1890
  • Piano: rialzato
  • Piani Edificio: 5
  • Bagni: 3
  • Esposizione: DOPPIA
  • Balconi: 2
  • Aria Condizionata: Si
  • Ascensore: Si
  • Portineria: Si
  • Spese: € 420,00 mese
  • Riscaldamento: Centralizzato elementi
Prestazione Energetica Globale (EPgl)

D.M. 26/06/2015

  • Classe Energetica: D
  • Edificio a energia quasi zero:
  • EP Globale non rinnovabile:
    KW h/m2 anno
  • EP Globale rinnovabile:
    KW h/m2 anno
  • Inverno (Epi):

    😀 😐 😔

  • Estate (Epe):

    😀 😐 😔

Classe energetica

D.L. 192 del 19/08/05

  • D
  • kWh/m2a: 41.15

Per Maggiori informazioni su questo annuncio Contattateci: